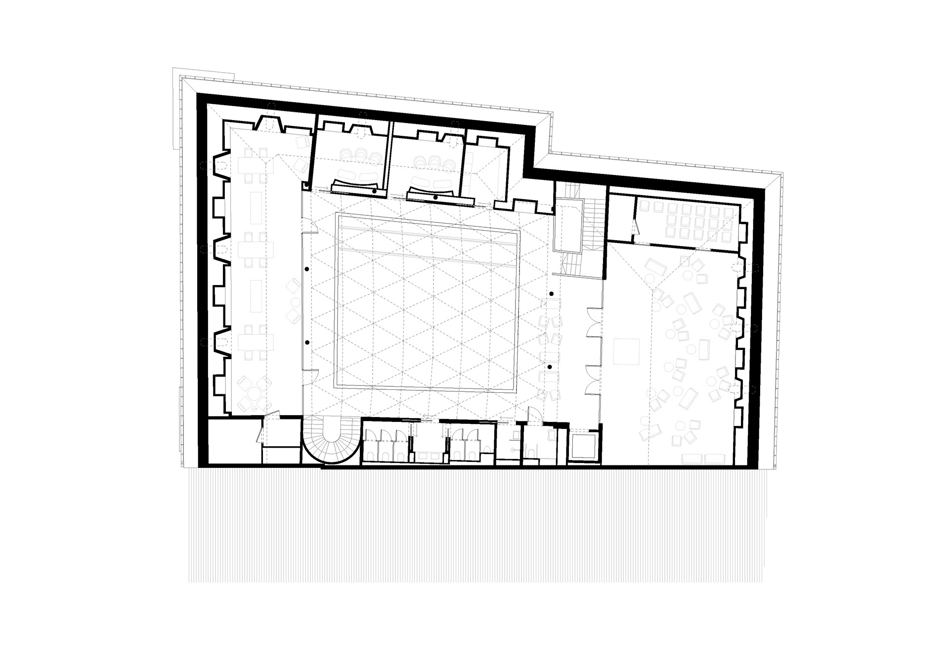
A Ginkgo-Zöld építésziroda építész munkatársaként vettem részt a műemléki épület felújítási-átalakítási engedélyezési terveinek elkészítésében. Az átalakítás előtti állapotában több lakásra osztott épület új középület funkciót kapott, ezért a teljes térstruktúráját és a közlekedők rendszerét is át kellett alakítani. A tetőtér és a belső udvar jobb kihasználhatósága érdekében az udvar fölé üvegtető készült, aminek tervezésénél komoly kihívást jelentett az elvárás, hogy kívülről ne legyen látható.
Fontos szempont volt, hogy az épület későbarokk és klasszicista korból megmaradt részletei láthatóvá váljanak és a kortárs elemekkel összhangba kerüljenek. Az új beavatkozások határozottak, de nem hivalkodók, a történeti épületekhez köthető anyagokat használnak, de megformálásukban kerülik a historizálást.
Fontos szempont volt, hogy az épület későbarokk és klasszicista korból megmaradt részletei láthatóvá váljanak és a kortárs elemekkel összhangba kerüljenek. Az új beavatkozások határozottak, de nem hivalkodók, a történeti épületekhez köthető anyagokat használnak, de megformálásukban kerülik a historizálást.
vezető tervező: Losonczi Júlia, Oroszlány Miklós
fotók: Danyi Balázs
fotók: Danyi Balázs